︎︎︎ Back
DISTORTION IN LAYERS
PHILADELPHIA, PA | FALL 2019 | 501 STUDIO | CRITIC DANIEL MARKIEWICZ
SELECTED FOR PUBLICATION IN THE UNIVERSITY OF PENNSYLVANIA WEITZMAN SCHOOL OF DESIGN’S ANUUAL PUBLICATION, “PRESSING MATTERS”
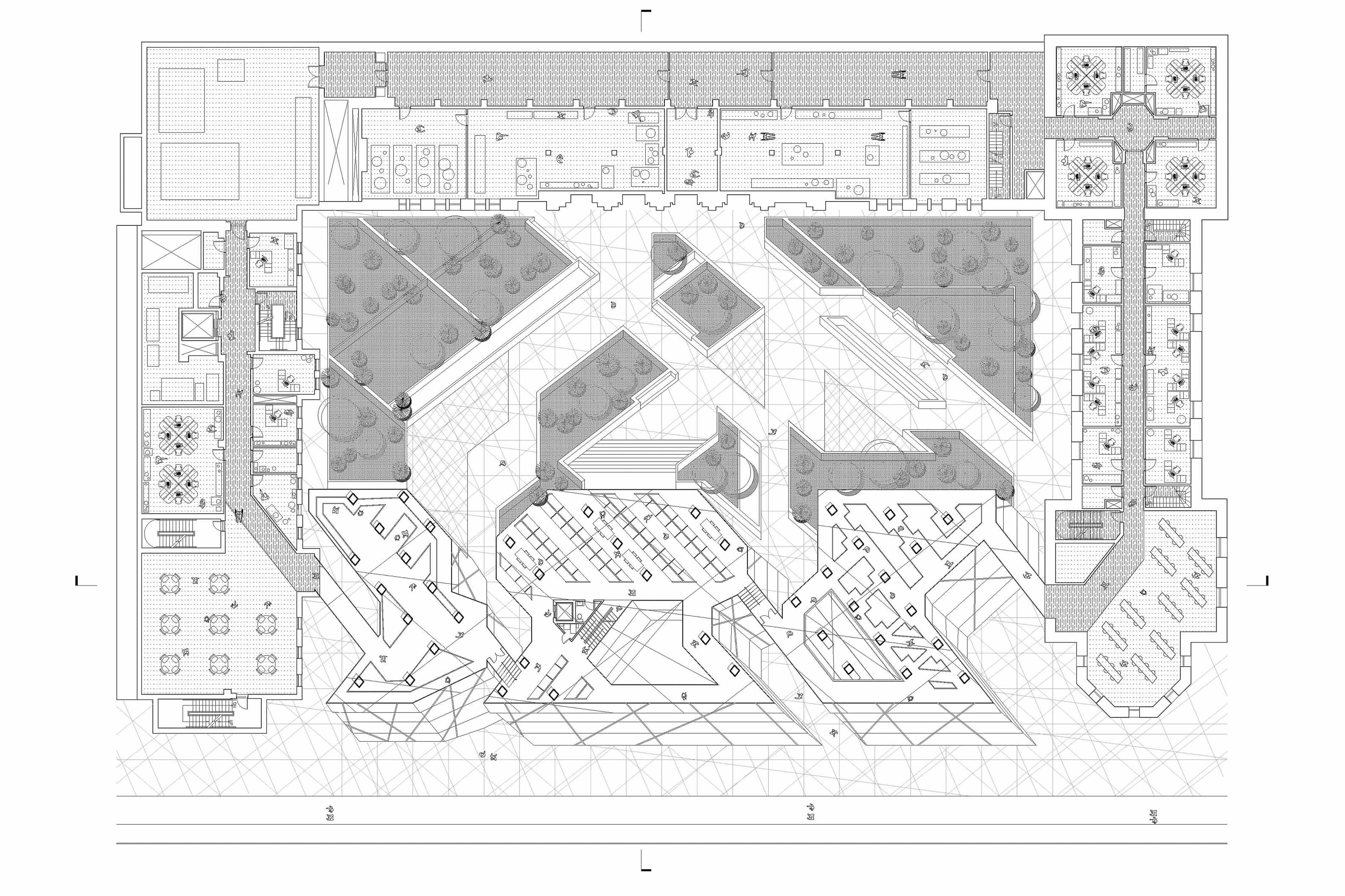
This project proposes an addition to the Penn Museum, by completend the fourth wall of the existing u-shaped building with a large courtyard in the front. Distortion is heavily manifested in our current reality, and we can relate the archive and museum itself to distortion as artifacts are displayed in a regularized way, without much regard to their backstory and original interest beyond placing them amongst other geographically related objects. The true story of an individual artifact is lost, and the story presented on behalf of the institution is distorted.
Architecturally, the form lifts off of the ground, preserving the open nature of the courtyard as it exists currently, allowing for visual and physical connection with both the old and the new. Conceptually, the archive specifically muddles the goals of the museum, which is meant to show these artifacts to the public, when in fact only a small portion of the institution’s collection is on display at any given time. The use of layered glass and the forms that are derived to create the addition to the archive not only represent the distortion, but actively distort even the building itself when viewed from outside and within. This active distortion is revealed through visual overlays of material which obscure that which is beyond and refract light in unpredictable ways with the goal of bringing the understanding of our current societal issues to the forefront of our discourse.
︎︎︎ Back
DISTORTION IN LAYERS
PHILADELPHIA, PA | FALL 2019 | 501 STUDIO | CRITIC DANIEL MARKIEWICZ
SELECTED FOR PUBLICATION IN THE UNIVERSITY OF PENNSYLVANIA WEITZMAN SCHOOL OF DESIGN’S ANUUAL PUBLICATION, “PRESSING MATTERS”
This project proposes an addition to the Penn Museum, by completend the fourth wall of the existing u-shaped building with a large courtyard in the front. Distortion is heavily manifested in our current reality, and we can relate the archive and museum itself to distortion as artifacts are displayed in a regularized way, without much regard to their backstory and original interest beyond placing them amongst other geographically related objects. The true story of an individual artifact is lost, and the story presented on behalf of the institution is distorted.
Architecturally, the form lifts off of the ground, preserving the open nature of the courtyard as it exists currently, allowing for visual and physical connection with both the old and the new. Conceptually, the archive specifically muddles the goals of the museum, which is meant to show these artifacts to the public, when in fact only a small portion of the institution’s collection is on display at any given time. The use of layered glass and the forms that are derived to create the addition to the archive not only represent the distortion, but actively distort even the building itself when viewed from outside and within. This active distortion is revealed through visual overlays of material which obscure that which is beyond and refract light in unpredictable ways with the goal of bringing the understanding of our current societal issues to the forefront of our discourse.
DISTORTION IN LAYERS
PHILADELPHIA, PA | FALL 2019 | 501 STUDIO | CRITIC DANIEL MARKIEWICZ
SELECTED FOR PUBLICATION IN THE UNIVERSITY OF PENNSYLVANIA WEITZMAN SCHOOL OF DESIGN’S ANUUAL PUBLICATION, “PRESSING MATTERS”
This project proposes an addition to the Penn Museum, by completend the fourth wall of the existing u-shaped building with a large courtyard in the front. Distortion is heavily manifested in our current reality, and we can relate the archive and museum itself to distortion as artifacts are displayed in a regularized way, without much regard to their backstory and original interest beyond placing them amongst other geographically related objects. The true story of an individual artifact is lost, and the story presented on behalf of the institution is distorted.
Architecturally, the form lifts off of the ground, preserving the open nature of the courtyard as it exists currently, allowing for visual and physical connection with both the old and the new. Conceptually, the archive specifically muddles the goals of the museum, which is meant to show these artifacts to the public, when in fact only a small portion of the institution’s collection is on display at any given time. The use of layered glass and the forms that are derived to create the addition to the archive not only represent the distortion, but actively distort even the building itself when viewed from outside and within. This active distortion is revealed through visual overlays of material which obscure that which is beyond and refract light in unpredictable ways with the goal of bringing the understanding of our current societal issues to the forefront of our discourse.